咨询热线: 400-128-7080 售后专线: 400-823-0116
快速报价

免费装修报价

咨询电话:400-128-7080

提示:丛一楼装饰向您承诺,您的个人隐私我们会严格保密!

主页 精品案例 英伦联邦325平米别墅欧式混搭风格设计案例

英伦联邦325平米别墅欧式混搭风格设计案例

来源:丛一楼装饰  更新时间: 2021-11-22

一键转发: 
  • 现代简约

    案例风格

  • 二居室

    案例户型

  • 110㎡

    案例面积

  • 市内楼盘

    案例楼盘

设计师: 伍辉强

楼  盘: 英伦联邦

户  型: 别墅

面  积: 325平方

造  价: 32万

风  格: 欧式混搭

设计说明:

   随着简约时尚设计分格的升级与传统欧式的净化,一些成功人士开始追逐欧式的家具风格。这套设计与其典雅、高贵的气质见长,在颜色上实用了大面积的石材造型及墙面整木彰显了高端大气,但又加入了一些玫瑰金不锈钢的时尚金属材质装饰融合在里面,让整个设计增添了时尚的元素。高档的材料与家具突现了室内的文化气息,更好的体现了主人的气质和修养。

客厅
客厅
餐厅
餐厅
卧室
卧室
起居室
起居室
二楼卧室
二楼卧室
卫生间
卫生间
三楼卧室
三楼卧室
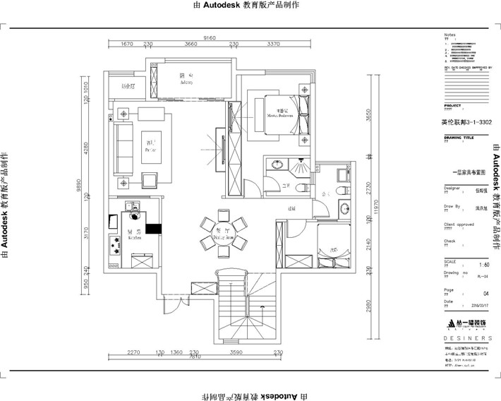
一楼平面布置图
一楼平面布置图
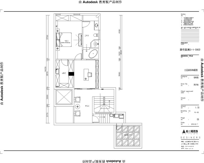
二楼平面布置图
二楼平面布置图
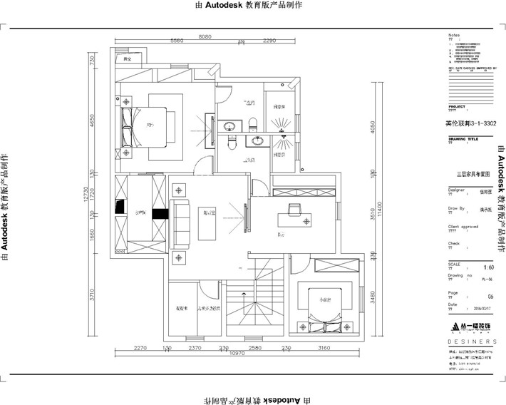
三楼平面布置图
三楼平面布置图

本案例设计师

李郁芬

李郁芬 从业时间:15年

我家装成这样要多少钱

相关案例

RELATED TO THE CASE

免费报价

已有 19056 位业主获取了装修报价

我家也要设计成这样

*您的称呼:
*电话号码:
*请您放心输入,您的一切信息将被严格保密
/*
*/

装修需要多少钱?

免费预约上门量房、报价

免费装修咨询

400-128-7080