咨询电话:400-128-7080
提示:丛一楼装饰向您承诺,您的个人隐私我们会严格保密!
来源:丛一楼装饰 更新时间: 2021-11-16
现代简约
案例风格
二居室
案例户型
110㎡
案例面积
市内楼盘
案例楼盘
设计师:钱 成
方案出品(丛一楼装饰)
楼盘: 九龙湖花园21栋
·户型: 四房两卫
·面积:160平方
·风格:简美风格
·装修造价:11万 主材造价:20万
.主材:、石膏线、多层复合地板、橱柜、瓷砖、卫浴
等......
·项目:水电、泥工、木工、油灰.....
设计说明:
美式家居风格的这些元素也正好迎合了时下的文化资产者对生活方式的需求,即:有文化感、有贵气感,还不能缺乏自在感与情调感。
本案采用原生态木质做主体元素、家居自由随意、简洁怀旧、实用舒适;以浅咖色为主的自然色彩。

客厅全景

餐厅

客厅电视背景

沙发背景

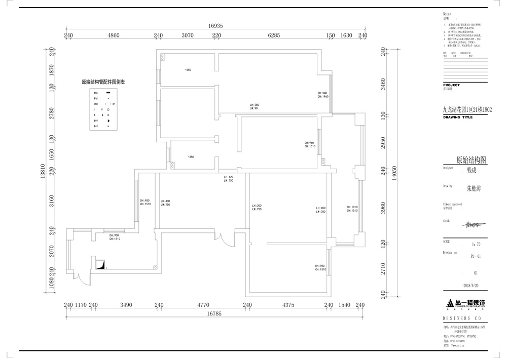
原始结构图

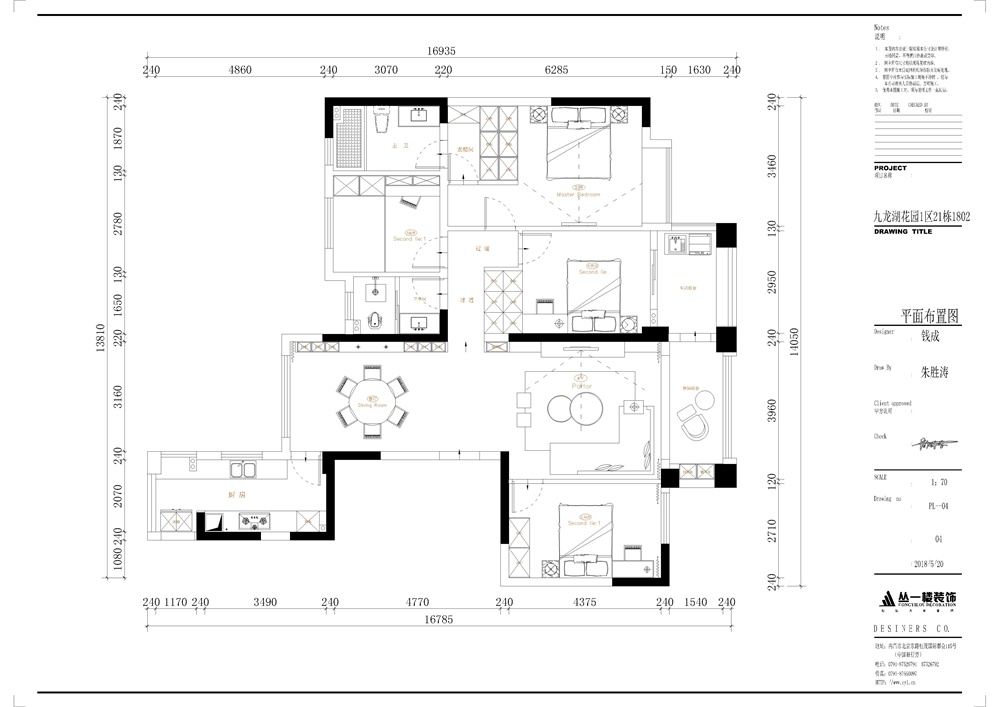
平面布置图

