咨询热线: 400-128-7080 售后专线: 400-823-0116
快速报价

免费装修报价

咨询电话:400-128-7080

提示:丛一楼装饰向您承诺,您的个人隐私我们会严格保密!

主页 精品案例 龙森山居246平新中式风格案例

龙森山居246平新中式风格案例

来源:丛一楼装饰  更新时间: 2021-11-13

一键转发: 
  • 现代简约

    案例风格

  • 二居室

    案例户型

  • 110㎡

    案例面积

  • 市内楼盘

    案例楼盘

设计师:程 辉

方案出品:丛一楼装饰

职务:首席设计师

楼盘:龙森山居2-2-102

面积:246㎡

合同造价: 20万 (不含主材)

风格:新中式风格

客厅

餐厅

主卧

次卧

一层平面布置图

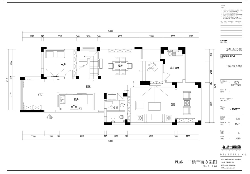
二层平面布置图

三层平面布置图

 

本案例设计师

李郁芬

李郁芬 从业时间:15年

我家装成这样要多少钱

相关案例

RELATED TO THE CASE

免费报价

已有 19056 位业主获取了装修报价

我家也要设计成这样

*您的称呼:
*电话号码:
*请您放心输入,您的一切信息将被严格保密
/*
*/

装修需要多少钱?

免费预约上门量房、报价

免费装修咨询

400-128-7080