咨询热线: 400-128-7080 售后专线: 400-823-0116
快速报价

免费装修报价

咨询电话:400-128-7080

提示:丛一楼装饰向您承诺,您的个人隐私我们会严格保密!

主页 精品案例 唐墅210平极简原木风大平层

唐墅210平极简原木风大平层

来源:丛一楼装饰  更新时间: 2025-08-21

一键转发: 
  • 现代简约

    案例风格

  • 复式/别墅

    案例户型

  • 210㎡

    案例面积

  • 唐墅

    案例楼盘

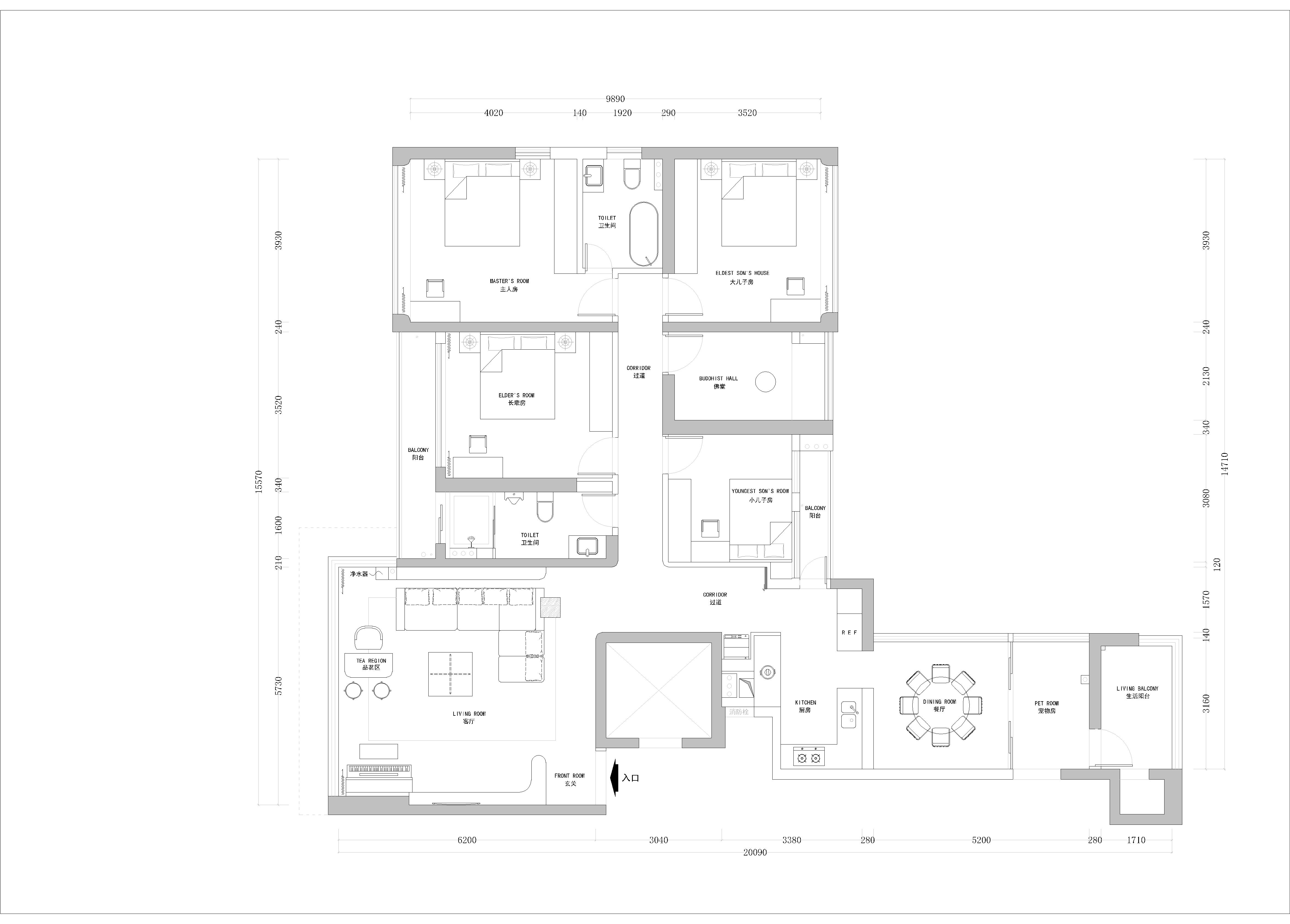
楼盘名称:唐墅   
项目面积:210平米
大平层
设计风格:欧式风格极简原木风
沉醉于极简奶油原木风的柔和色调中,感受温柔的奶油色与自然木质的完美融合,轻松打造出一个既现代又温馨的家。
原木的纹理与奶油色的温暖搭配,透出一种轻松惬意的生活气息,带来细腻而不失简约的空间效果。

本案例设计师

刘闯

刘闯 从业时间:18年

我家装成这样要多少钱

相关案例

RELATED TO THE CASE

免费报价

已有 19056 位业主获取了装修报价

我家也要设计成这样

*您的称呼:
*电话号码:
*请您放心输入,您的一切信息将被严格保密
/*
*/

装修需要多少钱?

免费预约上门量房、报价

免费装修咨询

400-128-7080