咨询电话:400-128-7080
提示:丛一楼装饰向您承诺,您的个人隐私我们会严格保密!
来源:丛一楼装饰 更新时间: 2025-08-21
欧式
案例风格
复式/别墅
案例户型
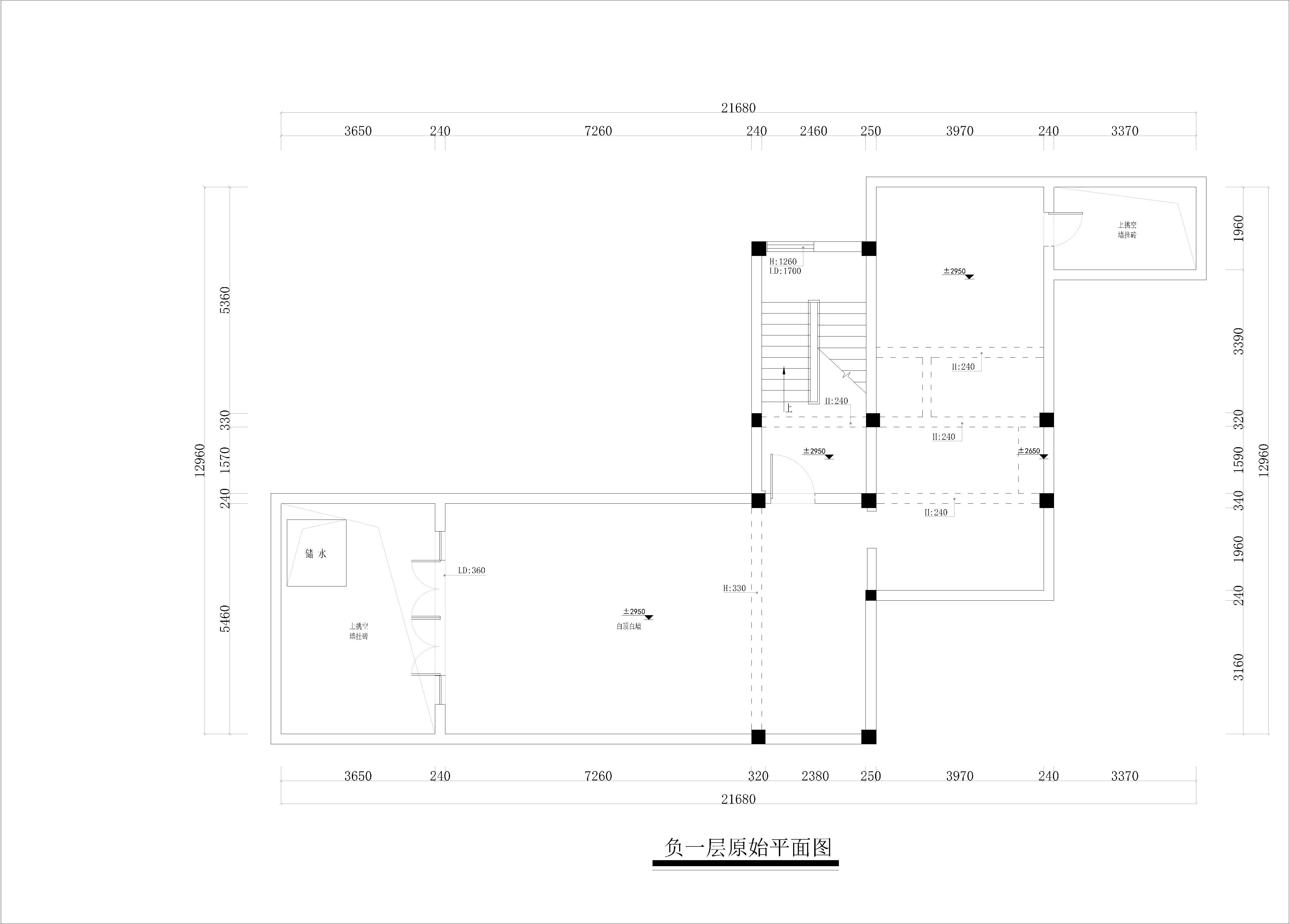
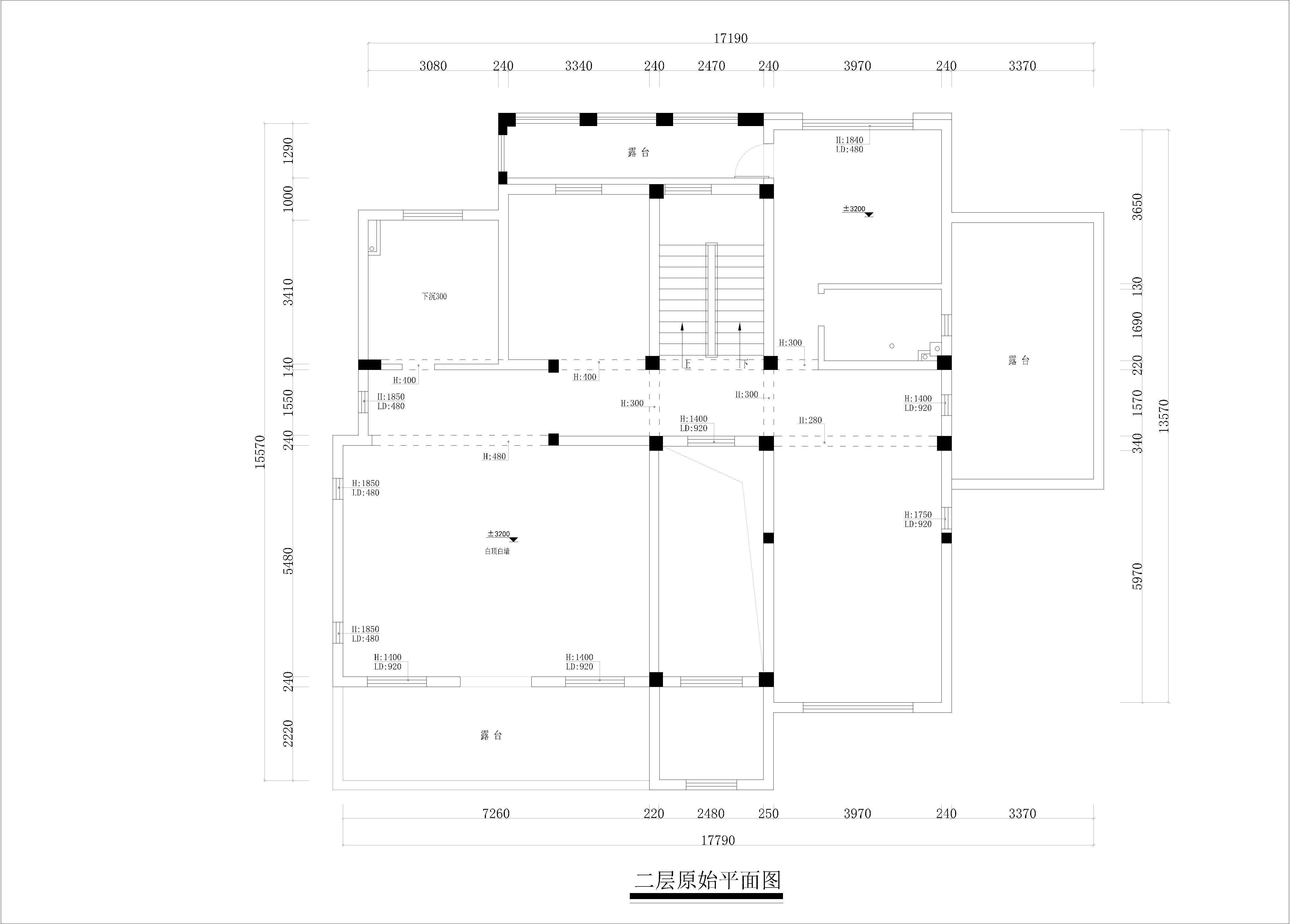
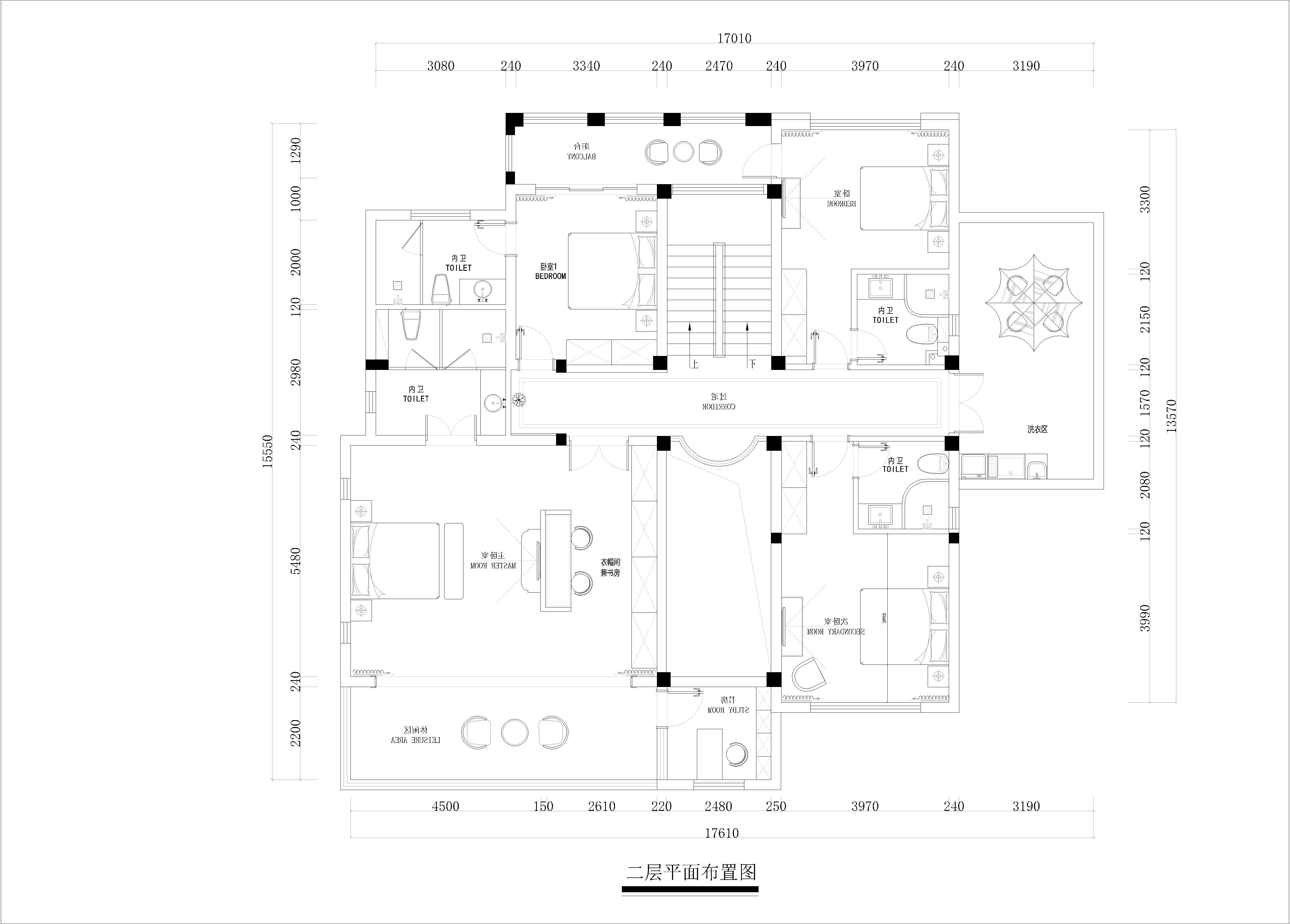
650㎡
案例面积
丽湾域
案例楼盘
楼盘名称:丽湾域
项目面积:650平米
设计风格:欧式风格
独栋别墅
了解业主需求,以欧式风格为基调,与居住者契合的美学意识、艺术态度与人文精神,通过不同的色彩搭配、材质肌理、陈设排列,构筑出奢华、舒适的宜居“宫殿”。
客厅以美的“形”与“意”回应了空间概念,借空间典雅之美,展露居住者的内在追求。在这具有包容感和归属感的空间中,无数浪漫被定格。米色是包容的底色,立面的石材经过雕刻处理,谱写出一篇磅礴乐章。地面的铺装融入深咖色菱格与波导线,在光晕顶面的映衬下,强化了空间架构。雍容华贵的沙发、璀璨灵动的水晶吊灯、浪漫自然的边柜,冷暖之间,更具张力。通过静谧、丰盈的视觉呈现,有序且温润地表达了场域精神,美好生活隐喻其中。
不同材质之间,承载着不同的故事,它们相互对话,情感交织,洄游其中,产生共鸣,强调了设计的完整性与延续性。置身其中,可尽情感受自己的感受。
















