咨询电话:400-128-7080
提示:丛一楼装饰向您承诺,您的个人隐私我们会严格保密!
来源:丛一楼装饰 更新时间: 2020-09-12
案例风格
复式/别墅
案例户型
280㎡
案例面积
绿地山庄
案例楼盘
设计师:杨瑞
楼盘:绿地山庄150-100室
户型:别墅
面积:280平方米
风格:日式风格
主材:原木、地砖、实木地板、橱柜、卫浴等
工程项目:本案为半包工程,含四大工种及造型装饰等。
设计说明:本案设计定位为日式风格。日式风格讲究空间的流动,设计上也特别善于借助外景为室内带来生机。室内的家具也一般都比较低矮,给人宽敞明亮的感觉,空间造型显得极为简洁,阳光透过窗户洒进来,一切都是满满的自然气息。

停车区原始平面图

停车区平面布置图

一楼原始平面图

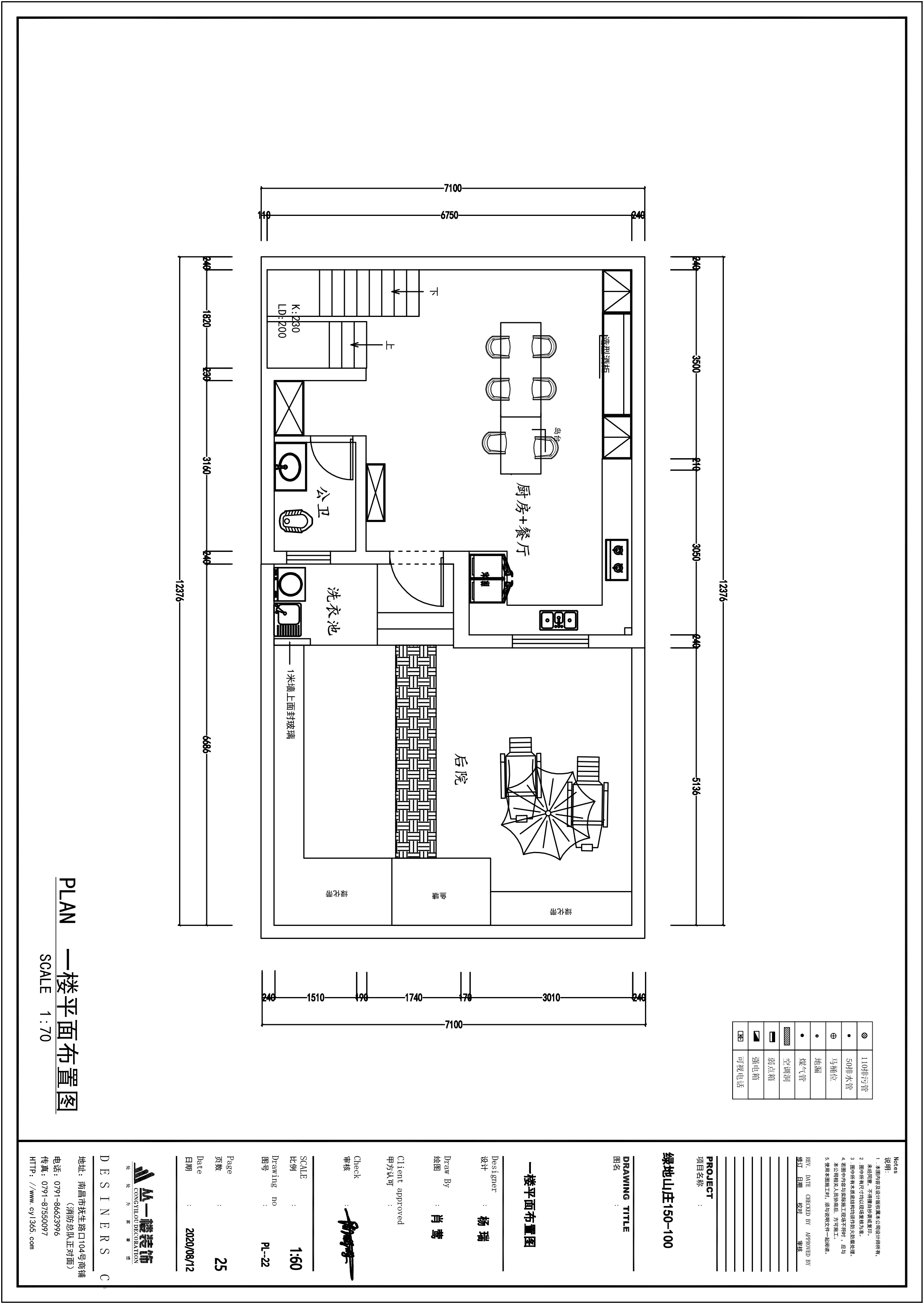
一楼平面布置图

二楼原始平面图

二楼平面布置图

三楼原始平面图

三楼平面布置图

四楼原始平面图

四楼平面布置图

客厅效果图

卧室效果图

书房效果图

餐厅效果图

厨房效果图

