咨询电话:400-128-7080
提示:丛一楼装饰向您承诺,您的个人隐私我们会严格保密!
来源:丛一楼装饰 更新时间: 2020-07-03
现代简约
案例风格
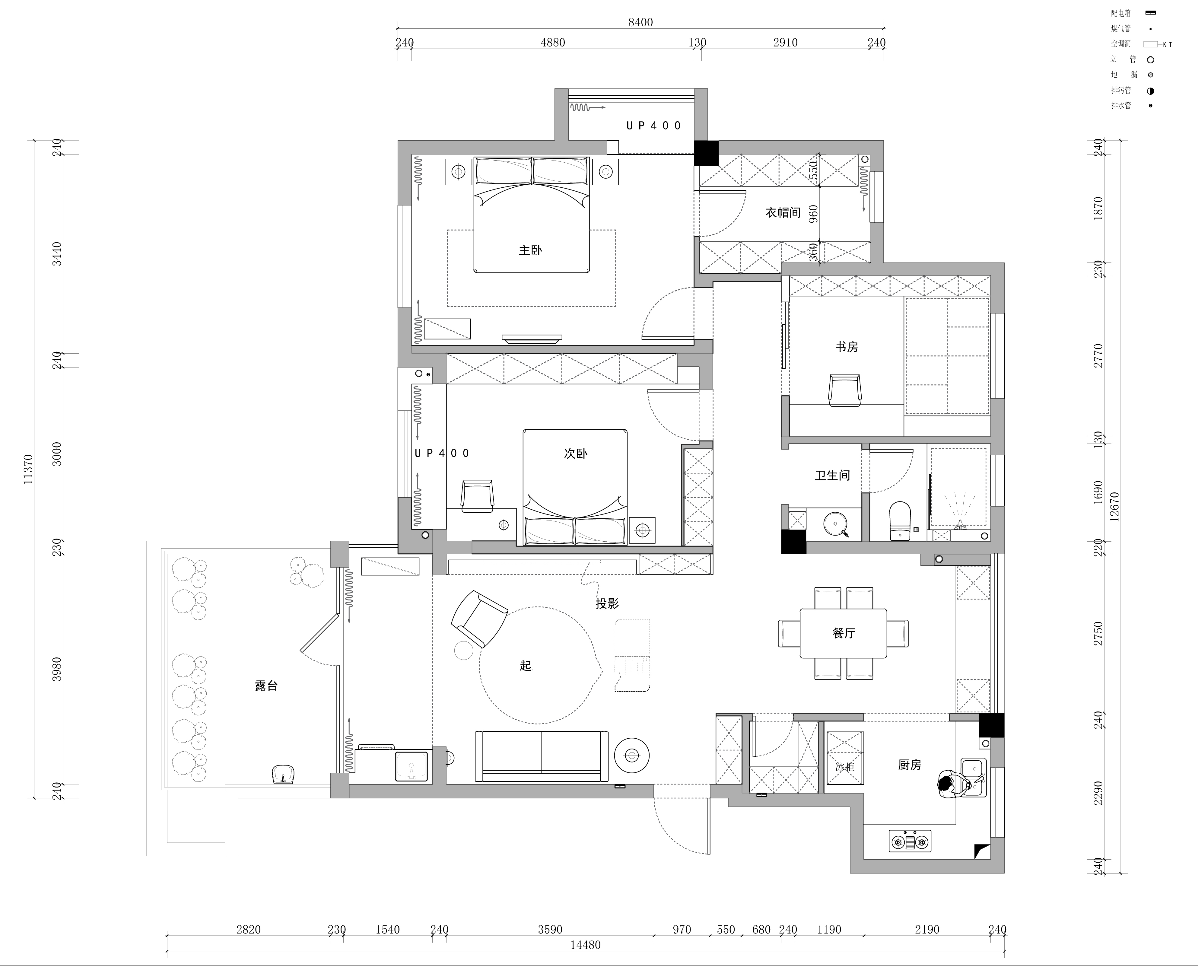
三居室
案例户型
120㎡
案例面积
丰和新城
案例楼盘
设计说明:本案环境优美,以一三口之家为依据进行设计,突出温馨且不失时尚之感。设计师以简洁明快的设计风格为主调进行全面考虑。在总体布局方面,尽量满足三口之家生活上的需求,主要装修材料为木地板、理石、木皮为装饰饰面,以浅胡桃木皮优美含蓄的质感装饰玄关,创造一个温馨、健康的现代家庭环境.环境室内设计区别于简单的装饰设计就在于环境艺术设计是从全局出发,而不仅仅着眼某一点或某一个墙面的装饰。力求达到统一中带有变化,和谐中产生对比的要求。

平面布置图

客厅

客餐厅

主卧

次卧

